NEW

【いわき市錦町第32】 1号棟 ※必ずもらえる選べるキャンペーン実施中! 1号棟

2,280万円

福島県いわき市錦町御宝殿25-2

常磐線「植田」駅徒歩25分

常磐線「勿来」駅徒歩48分

価格
2,280万円
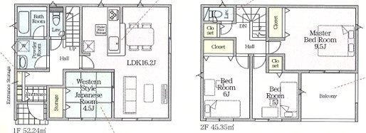
間取り
4LDK
土地面積
152.99㎡
所在地
福島県いわき市錦町御宝殿25-2
交通

常磐線植田」駅 徒歩25分

常磐線勿来」駅 徒歩48分

建物面積
97.59㎡
築年月
2026年3月(新築)

現地案内会

日時  09:00 ~ 19:00
  • ※事前に必ずお問い合わせください
  • ■プラスが選ばれる6つの理由■

    1.新築建売に特化した強み
    プラスでは建売販売の一点のみのに絞り、建物のことから住宅ローンのことまで勉強会を開き学んでおります。特化しているからこそできる豊富な経験と最新の物件情報をご提供致します。

    2. 住宅ローンについて

    プラスでは、地元いわき市の不動産業者の中で新築建売販売数がNo.1
    頭金がゼロ
    転職してまだ日が浅い
    シングルマザーや自営業なので心配
    他にも仮入れがある
    他社で審査が通らなかった
    当社は住宅ローンのご相談数が多く経験からどこがお客様にとってベストな金融機関かをご提案することができます。
    金融機関と提携しておりますので、安心してご相談下さい!
    最優遇金利でお借りできる銀行をご紹介致します。


    3.資金計画を明確にお見せします

    建売住宅には、カーテンレール、網戸、エアコン、照明、アンテナは
    付属していません。
    不動産プラスでは住みはじめるまでの合計の金額でのご提案を致しますので
    総額費用が明確です。

    4.国家資格を有したプロがご提案させて頂きます

    現地集合はもちろん、近くの目印になる場所で待ち合わせもOK
    他社で掲載していた物件を見たい等、何でもご相談下さい。
    気になる物件があれば即日ご対応致します。


    5.アフターフォロー

    住宅ローン控除・不動産取得税は耳にしたことはありますか?
    ほとんどの方が初めての経験で、分からない部分が多いです。
    プラスでは全てのお客様へのサポートを最後までさせて頂きます!

    6.生活応援プレゼントキャンペーン実施中!

    ご成約金額に関わらずプラスにてご成約されたお客様全員にもれなくお好きな商品をサービスさせて頂きます。
    ぜひ、弊社へのご連絡をスタッフ一同お待ちしております!


物件の特徴

  • バストイレ別

  • 室内洗濯機置場

  • TVモニタ付きインターホン

  • カウンターキッチン

  • 独立洗面台

  • 浴室乾燥機

セールスポイント

☆☆経済的にも嬉しい価格☆☆
ご成約キャンペーン対象
◆ルーフバルコニーで急な雨にも安心♪
◆無駄のない家事動線
◆半身浴もゆっくり楽しめる広々浴室
◆お料理を効率的に、楽しく!システムキッチン♪

ポイント

南向き 設計住宅性能評価付 オートバス 陽当り良好 洗面所に窓

担当者のコメント

緑川 伸二

薬や日用品を買うのに便利なくすりのマルト 調剤薬局 鳥居店まで、442mです。フラット35Sに対応しています。こちらの物件の間取りは4LDKとなっており、室内も広々です。この物件は内観も綺麗で設備も充実した、2026年3月築となっています。不動産情報はもちろん、地域情報も詳しくお伝え致します。いわき市で生活するにあたって気になる点があれば、ぜひご質問くださいませ。

基本情報

販売戸数
-
総戸数
4戸
間取り / 詳細
4LDK
LDK 16.2帖 1室/和室 4.5帖 1室/洋室 5.0帖 1室/洋室 6.0帖 1室/洋室 9.5帖 1室
向き
建物面積(坪数)
97.59㎡(29.52坪)
土地面積(坪数)
152.99㎡(46.27坪)
建ぺい率 /
容積率
60%/200%
築年月
2026年3月(新築)
駐車場 / 月額
有(3台) / 0円
土地権利
所有権
土地
(敷金 / 保証金)
- / -
建物構造
木造 / 2階建
傾斜地部分面積
-
路地状敷地
-
私道負担面積
-
セットバック
高圧線下面積
-
施工会社
-
用途地域
第一種住居
地目 / 地勢
宅地 / -
接道状況
一方(南 公道 4.0m)
国土法届出要否
不要
都市計画
市街化区域
総区画数 /
販売区画数
4区画/-
現況
完成済み
その他
法令上の制限
-
取引態様
一般媒介
引渡し
即時
取引条件の
有効期限
2026年04月27日

設備条件

設備条件
  • ペット相談 / 陽当り良好 / バリアフリー / 建設住宅性能評価書付 / 住宅性能保証付 / ノンホルムアルデヒド / 現地案内会 / 女性向け / 新婚さん向け / ファミリー向け / キャンペーン / 室内洗濯機置場 / フローリング / ベランダ / バルコニー / ルーフバルコニー / プロパンガス / 公営水道 / 公共下水 / 24時間換気システム / 電気有 / 2面バルコニー / 給湯室 / 駐輪場 / バイク置場あり / 駐車3台可 / 免震構造 / 耐震構造 / ガスコンロ / コンロ2口以上 / システムキッチン / カウンターキッチン / コンロ3口 / バス・トイレ別 / 追焚機能浴室 / 浴室乾燥機 / 温水洗浄便座 / 洗面台 / 洗髪洗面化粧台 / トイレ2ヶ所 / 浴室1坪以上 / 独立洗面台 / 床下収納 / 収納豊富 / TVモニタ付インターホン / 宅配ボックス / 複層ガラス
設備(その他)
    -

その他

物件番号
102563628
管理コード
-
建築確認番号
第R07SHC122582号
情報更新日
2026年04月13日
次回更新予定日
2026年04月27日
取扱会社
  • 不動産プラス
  • 福島県いわき市泉町6丁目1-21 
  • TEL:0246-84-6151
  • 国土交通大臣 (1) 第10064号
  • (公社)全日本不動産協会
備考

\☆不動産プラスは豊富な物件情報を取り揃えております♪☆/


◇◆住まいのポイント◆◇


☆陽当たりの良いリビングで家族団らんの時間♪
☆見通しの良い対面式キッチン
☆たっぷりの収納完備!
☆家族全員分のお布団も干せる広々ルーフバルコニー♪
☆三面鏡タイプの洗面化粧台♪
☆毎日の疲れを癒す広々とした浴室♪
☆綺麗な立ち並びで駐車スペースもしっかり確保!


ご成約特典として
人気家電プレゼント中です♪
【月々の支払やライフプラン設計も承ります!】

周辺施設

  • いわき市立錦小学校の画像

    小学校

    いわき市立錦小学校

    439m(6分)

  • くすりのマルト 調剤薬局 鳥居店の画像

    ドラッグストア

    くすりのマルト 調剤薬局 鳥居店

    442m(6分)

  • しまむら 錦店の画像

    その他

    しまむら 錦店

    898m(12分)

  • ウエルシアいわき錦店の画像

    ドラッグストア

    ウエルシアいわき錦店

    914m(12分)

  • すき家 いわき錦店の画像

    その他

    すき家 いわき錦店

    1195m(15分)

  • ローソン いわき錦町江栗三丁目店の画像

    コンビニエンスストア

    ローソン いわき錦町江栗三丁目店

    1242m(16分)

  • 山新 錦店の画像

    ホームセンター

    山新 錦店

    1307m(17分)

  • いわき市立錦中学校の画像

    中学校

    いわき市立錦中学校

    1608m(21分)

支払いシミュレーション

月々の支払額

※実際の金額と異なる場合があります。

購入希望物件価格
万円
頭金
万円
金利
%
返済額(ボーナス1回分)
万円
返済期間

※ボーナスは自動で年2回分で計算されます。

近隣の物件

  1. ☆いわき市常磐西郷町 第10/2号棟☆ 新築建売住宅 ご成約特典として人気家電プレゼント中です!

    いわき市常磐西郷町落合

    4LDK (99.62㎡)

    2,180万円

  2. 【いわき市若葉台2丁目 第5/1号棟】 ◇期間限定キャンペーン開催◇

    いわき市若葉台2丁目

    4LDK (105.98㎡)

    2,790万円

  3. 【郷ケ丘 4期】 2号棟 ◆新生活応援キャンペーン中! オール電化新築建売住宅☆・。

    いわき市郷ケ丘2丁目

    4LDK (102.67㎡)

    2,780万円

  4. 【内郷御厩町4丁目第1/全5棟 2号棟】 ランドリールーム付き♪

    いわき市内郷御厩町4丁目

    4LDK (107.65㎡)

    2,960万円

よく見られている物件

  1. ラスト1棟 ◆新生活応援キャンペーン中! 泉もえぎ台 2号棟 オール電化新築建売住宅☆・。

    いわき市泉もえぎ台2丁目

    4LDK (98.54㎡)

    3,380万円

  2. ◆先着申込受付中◆ 【錦町花ノ井 1号棟】 お買物環境良好♪

    いわき市錦町花ノ井

    4LDK (92.74㎡)

    2,580万円

  3. 【錦町花ノ井 5号棟】家族が集まるLDKはゆとりある19.2帖♪

    いわき市錦町花ノ井

    4LDK (91.71㎡)

    2,380万円

  4. ◆新生活応援キャンペーン中! 小名浜林城 2号棟 オール電化新築建売住宅☆・。

    いわき市小名浜林城字日代鳥

    4LDK (102.26㎡)

    2,490万円

【いわき市錦町第32】 1号棟 ※必ずもらえる選べるキャンペーン実施中!

【いわき市錦町第32】 1号棟 ※必ずもらえる選べるキャンペーン実施中!

2,280万円

-

4LDK(97.59㎡)

お気軽にお問い合わせください

無料お問い合わせ

不動産プラス

0246-84-6151

9:00~18:00

(休:水曜日)